| 所在地 | 最寄駅 | 徒歩 バス | 価格 | 建物面積 土地面積 | 間取り | 階数 | 築年月 |
| 東京都青梅市二俣尾5丁目 地図を表示 | JR青梅線 二俣尾駅 | 9分 - | 1,980万円 | 91.09㎡ 206.15㎡ | 4LDK | 2階建 | H.21年 7月 |
| 所在地 | 東京都青梅市二俣尾5丁目 地図を表示 | ||
| 物件名称 | 二俣尾5丁目 中古戸建 お問い合わせはメールで対応 電話不可 | ||
| 交通機関 | JR青梅線  二俣尾駅  徒歩9分 | ||
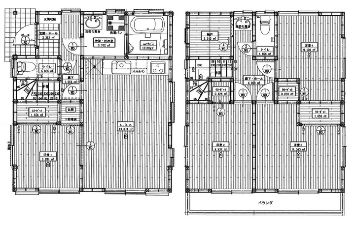
| 価格 | 1,980万円 | 建物面積/土地面積 | 91.09㎡/206.15㎡ |
| 主要採光面 | - | バルコニー面積 | - |
| 間取り | 4LDK | 築年月 | H.21年 7月 |
| 間取り詳細 | - | ||
| 建物構造 | 木造 | 所在階/階数 | -/2階建 |
| 総戸数/駐車場 | -/無し | 土地権利 | 所有権 |
| 都市計画 | 市街化区域 | 地目 | 宅地 |
| 用途地域1 | 第一種低層住居専用地域 | 建ぺい率1/容積率1 | 40%/80% |
| 用途地域2 | - | 建ぺい率2/容積率2 | -/- |
| 私道面積/セットバック面積 | -/- | 接道状況 | 南、西   |
| 地勢 | 平坦 | 国土法届出 | 不要 |
| 管理費/修繕積立金 | -/- | 施設費用/その他費用 | -/- |
| 管理形態/管理会社 | -/- | ||
| 設備・条件 | 水道(公営)、ガス(プロパン)、下水(本下水)、電気(東京電力) | ||
| 周辺施設等 | - | ||
| 備考 | ※【お電話でのお問い合わせ】、【事前予約のないご来社】には取扱物件数が多数あり、営業が常駐しておりませんので対応致しかねます 【メールでのお問い合わせ】のみの対応となります 【会員登録物件】をご覧になりたい方はトップページの【会員登録リンク】より会員登録をお願い致します 物件の詳細などの質問やお聞きになりたいことなどは、必ずホームページ右上の【お問合せフォーム】からのご質問でお願い致します お問合せの際は、【土地】【中古戸建】【中古マンション】【新築】を指定頂き、【物件住所】【物件価格】を記載のうえお問合せ下さい また、偽名住所電話番号の記載のないお問い合わせには一切対応致しませんので予めご承知おきください まずはご自身で【googleマップ】【yahoo地図】など参照のうえ、実際に現地に足を運んで、現地を含め周辺環境をご確認頂き、現状の環境等ご確認ご納得のうえで、ご内覧を希望されて下さい 【真剣にご検討下る方のみ】ご案内させて頂いております。尚、【興味本意で内覧したいだけの方や販売価格を無視した値下げ要請には対応しません】ので予め御了承下さい。【現地周辺をご確認頂かずご案内希望の際には、交通費等として1万円をご請求致しますのであらかじめご承知おき下さい】 現地確認の際には予めルートの確認をして頂き、居住者に迷惑のかからないように周辺から遠巻きでご確認下さい 敷地内には許可なく入らないようお願いします ご内覧をご希望の際は、事前にメールでご連絡下さい 事前にご連絡のないご案内は対応できません (万一売却済みの場合はご容赦下さい。) ※同業他社様からのお問合せは一切対応致しません 東京で田舎暮らし 南西角地陽当り良好 自然溢れる解放感ある住環境 駐車4台可 ドッグラン付の広いお庭 犬好きの方はぜひ | ||
| URLリンク | - | ||
| 引渡し | 相談 | 現況 | 居住中 |
| 情報登録日 | 2026/04/04 | 情報有効期限 | - |
| 物件ID | 2025122201 | 取引態様 | 専任媒介 |